A&M Hardware Concealed Flat Bracket: A Smart Solution

P.Serviceform 67 views
A&M Hardware Concealed Flat Bracket: A Smart Solution

A&M Hardware Concealed Flat Bracket: A Smart Solution

Hey guys, ever found yourself staring at a project and thinking, “How can I make this look cleaner, more professional, and super strong?” Well, let me tell you about something that’s been a game-changer for a lot of DIYers and pros alike: the A&M Hardware Concealed Flat Bracket . Seriously, this little piece of engineering magic is all about making your shelves, cabinets, and general structures look seamless while keeping them rock solid. We’re talking about a bracket that pretty much disappears, giving you that clean, modern aesthetic you’ve been dreaming of without sacrificing any of the support you need. So, if you’re tired of those chunky, unsightly brackets ruining your vibe, stick around because we’re diving deep into why this concealed flat bracket from A&M Hardware is a must-have in your toolkit. We’ll cover what makes it so special, how easy it is to use, and where it truly shines, so by the end of this, you’ll be wondering how you ever lived without it.

Why Choose Concealed Flat Brackets?

Alright, let’s chat about why you’d even bother with a concealed flat bracket in the first place. The main reason, guys, is aesthetics . Think about it: you’ve just finished building a beautiful bookshelf, stained it to perfection, and then you slap on these bulky metal brackets that scream “DIY project circa 1990.” Not exactly the look we’re going for, right? Concealed flat brackets, like the ones from A&M Hardware, are designed to be hidden. They mount underneath your shelf or surface, meaning they are completely invisible from the top and sides. This creates a floating effect, making your shelves look like they’re magically attached to the wall. It’s a sleek, minimalist look that works wonders in modern homes, especially for things like floating shelves, TV units, or even custom cabinetry where you want a super clean finish. But it’s not just about looks; it’s also about strength and reliability . These aren’t flimsy little things. Good quality concealed brackets are engineered to hold significant weight. A&M Hardware, for instance, focuses on robust materials and smart design to ensure their brackets provide dependable support. You get the best of both worlds: a beautiful, unobstructed view of your project and the peace of mind that it’s not going anywhere. Plus, installation can often be simpler than traditional brackets, especially if you’re aiming for that clean, built-in look. So, if you value clean lines, a professional finish, and a structure that’s built to last, concealed flat brackets are definitely the way to go. They solve the age-old problem of function versus form, proving you can have both without compromise. It’s the subtle details that elevate a project from good to great , and these brackets are a perfect example of that.

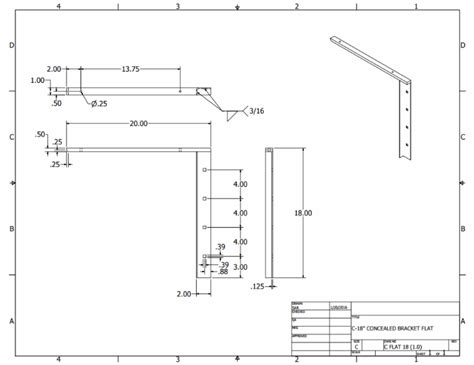
The A&M Hardware Difference

So, what sets A&M Hardware’s concealed flat bracket apart from the crowd? Well, it boils down to a few key things that make a real difference in quality and usability. First off, A&M Hardware has a reputation for using high-quality materials . We’re talking about durable metals, often steel, that are built to withstand loads without bending or failing. This is crucial because, remember, these brackets are hidden, so you can’t easily see if they’re starting to give way. Knowing you’ve got a solid foundation from a reputable brand like A&M gives you that extra layer of confidence. Another big plus is the thoughtful design . These brackets aren’t just a flat piece of metal; they’re engineered for optimal support and relatively straightforward installation. A&M often designs their concealed brackets with features that make them easier to secure to both the wall and the underside of the shelf, sometimes including pre-drilled holes or specific mounting patterns. This attention to detail minimizes the frustration factor during installation, which, let’s be honest, can be a real headache with DIY projects. They understand that not everyone is a master carpenter, so they aim to make their products accessible. Furthermore, A&M Hardware often focuses on versatility . Their concealed flat brackets are typically designed to work with a variety of shelf materials and thicknesses, and they come in different sizes to accommodate different spans and weight capacities. This means you’re not limited to one specific type of project; you can use them for everything from lightweight decorative shelves to heavier-duty applications. Finally, their commitment to customer satisfaction is often evident. While we’re talking about the product itself, knowing that a company stands behind its hardware can be reassuring. They aim to provide reliable solutions that help you achieve professional-looking results. So, when you choose an A&M Hardware concealed flat bracket, you’re not just buying a piece of metal; you’re investing in quality, smart design, and a brand that’s focused on helping you succeed with your projects.

Installation Made Easy (Mostly!)

Okay, let’s talk installation, because that’s often where DIY projects can get a bit hairy. The beauty of a concealed flat bracket from A&M Hardware is that, compared to some other hidden support systems, it’s generally quite user-friendly . However,